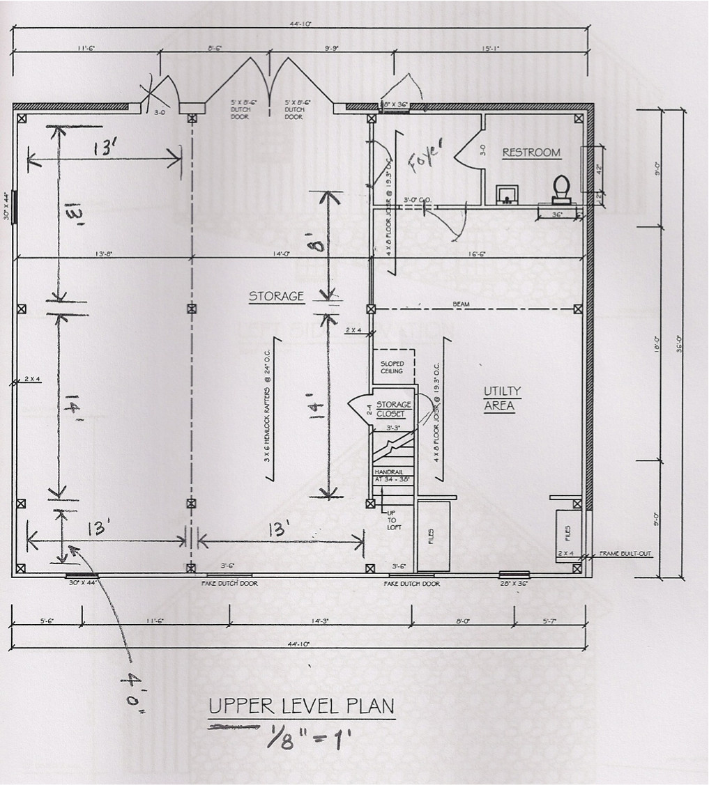
The Nicholas Stoltzfus House Barn
In 2006, the NSHPC has formed an Advancement Committee that began raising funds to build a Sweitzer type barn, a barn common in the late 1700’s and early 1800’s. This barn would provide a climate controlled building to preserve Stoltzfus artifacts, restroom facilities for visitors, and living quarters for caretakers. Much labor has been donated by Daniel Esh Builders and Riehs Construction.

Select to view photos of the House, Barn, Auction,
Music Festival, and Barn Raising
by Merle Stoltzfus
The Barn Construction Begins May 15, 2011.
After nearly eight years of planning, work has started on a classic Pennsylvania barn replica at the
historic Nicholas Stoltzfus Homestead in Spring Township, Wyomissing. Earthmovers began clearing a
space for the foundation in a limestone field about 50 feet from the 231-year-old homestead.
"It's been a long time coming, but we've finally gotten to a place where we can move ahead,"
said Paul Kurtz, spokesman for the homestead's preservation committee.
"I hope this place (the Stoltzfus house and barn) will be a healing spot
to bring people of faith together in strength."
-- Mose Smucker, Chairman Nicholas Stoltzfus Homestead